View the embedded image gallery online at:
https://mail.grata-eco-house.se/proekty/proekty-s-obshej-ploshadju-ot-200m2-do-250m2/60-karkasnij-dom-augustinas#sigProId347c8d32dc
https://mail.grata-eco-house.se/proekty/proekty-s-obshej-ploshadju-ot-200m2-do-250m2/60-karkasnij-dom-augustinas#sigProId347c8d32dc
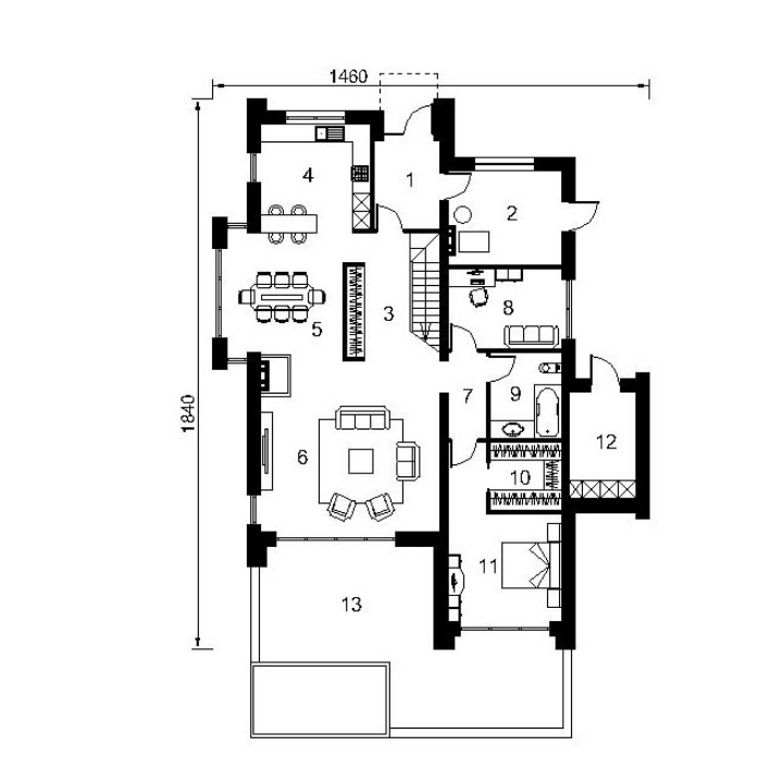
2-planshus Augustinas.
| Boarea | 220 m2 |
| Längd | 18,4 m |
| Bredd | 14,6 m |
| Antal rum | 6 |
| Garage | Nej |
Ring för mer information:
+371-670-16-500

